17730872222












千斤顶压滤机是一种间歇式的加压过滤机设备,用于各种悬浮液的固液分离,分离效果好,使用方便,广泛用于石油、化工、染料、冶金、制药、食品、造纸及污水处理等各种需要进行固液分离的领域,适用于小型过滤行业,一般使用压力较低,过滤压力小于0.4Mpa的过滤领域。

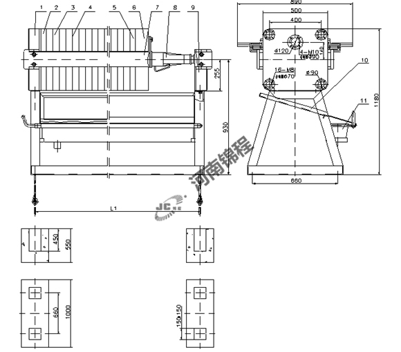
1、止推板 2、头 板 3、滤 板 4、滤 布 5、尾 板 6、压紧板 7、横 梁 8、千斤顶 9、支架 10、滤渣翻板 11、接液槽
注:1、地脚螺栓M16×300。 2、洗涤管与出液管根据用户不同过滤要求配置。
千斤顶压滤机主要由三大部分组成,即:机架部分、过滤部分、压紧装置。压滤机工作时,转动手轮,通过小齿轮、大齿轮,带动丝杠推动压紧板,将位于压紧板和止推板之间的滤板和过滤介质(滤布)压紧,以保证带有工作压力的被过滤物料(料浆)在滤室内进行加压过滤。
(1)机架部分:机架构成压滤机的基础,用以支撑过滤机构、连接其它部件。它主要由止推板、压紧板、压紧部分和主梁组成。
(2)过滤部分:是由以一定次序排列在主梁上的滤板和夹在滤板之间的过滤介质(滤布)组成,形成一个个过滤单元(滤室)。
(3)压紧部分:它是压滤机的动力装置,主要部件有小齿轮、大齿轮、丝杠等。
| 型号 | 过滤面积m2 | 滤板规格mm | 滤饼厚mm | 滤板数(块) | 滤室容积(L) | 过滤压力(Mpa) |
地基 尺寸 |
外形 尺寸 |
整机 质量Kg |
||||
|
L1 mm |
B mm |
C mm |
长 mm |
宽 mm |
高mm | ||||||||
|
BMS/
390-25U
|
1 | 390*390 | 25 | 4 | 13 | 0.5 | 650 | 150 | 500 | 1150 | 760 | 650 | 410 |
| 2 | 9 | 25 |
900
|
1450
|
570
|
||||||||
| 3 | 14 |
38
|
1150
|
1695
|
740
|
||||||||
|
BMS/ 30U |
1 | 390*390 | 30 | 4 |
15
|
0.5
|
710
|
150
|
500
|
1210
|
760
|
650
|
350
|
| 2 | 9 |
31
|
1020
|
1565
|
400
|
||||||||
| 3 | 14 |
46
|
1330
|
1875
|
455
|
||||||||
|
XMSQ/
520-20U
|
4 | 520*520 | 20 | 9 |
40
|
0.5-1.5
|
1130
|
200
|
600
|
1730
|
830
|
850
|
560
|
| 6 | 14 |
60
|
1360
|
1960
|
630
|
||||||||
| 8 | 19 |
80
|
1580
|
2180
|
700
|
||||||||
| 12 | 29 |
120
|
2060
|
2660
|
830
|
||||||||
| 16 | 39 |
160
|
2460
|
3050
|
980
|
||||||||
| 18 | 44 |
176
|
2690
|
3260
|
1160
|
||||||||
| 20 | 49 |
200
|
2910
|
3500
|
1360
|
||||||||
|
BNSQ/
520-30U
|
4 | 520*520 | 30 | 9 |
60
|
0.5
|
1300
|
200
|
600
|
1900
|
830
|
850
|
590
|
| 6 | 14 |
90
|
1600
|
2200
|
660
|
||||||||
| 8 | 19 |
120
|
1900
|
2500
|
760
|
||||||||
| 12 | 19 |
180
|
2520
|
3120
|
930
|
||||||||
| 16 | 39 |
240
|
3060
|
3660
|
1100
|
||||||||
|
XMSQ/
700-25U
|
20 | 700*700 | 25 | 24 |
250
|
0.5-1.6
|
2200
|
460
|
800
|
3100
|
950
|
11000
|
2210
|
| 30 | 37 |
380
|
2880
|
3800
|
2660
|
||||||||
| 40 | 49 |
500
|
3500
|
4400
|
3080
|
||||||||
|
BNSQ/
700-30U
|
20 | 700*700 | 30 | 24 |
300
|
0.5
|
2450
|
460
|
800
|
3350
|
950
|
1100
|
2300
|
| 30 | 37 |
450
|
3230
|
4050
|
2800
|
||||||||
| 40 | 49 |
600
|
3950
|
4900
|
3500
|
||||||||
千斤顶压紧压滤机采用螺旋千斤顶作为压紧装置,具有
1.结构简单,设计合理
2.操作方便,无需电源
3.经济实惠,维修方便
4适用范围广的特点,是悬浮液分离的理想设备
| 型号 | 过滤面积m2 | 滤板规格mm | 滤饼厚mm | 滤板数(块) | 滤室容积(L) | 过滤压力(Mpa) |
地基 尺寸 |
外形 尺寸 |
整机 质量Kg |
||||
|
L1 mm |
B mm |
C mm |
长 mm |
宽 mm |
高mm | ||||||||
|
BMS/
390-25U
|
1 | 390*390 | 25 | 4 | 13 | 0.5 | 650 | 150 | 500 | 1150 | 760 | 650 | 410 |
| 2 | 9 | 25 |
900
|
1450
|
570
|
||||||||
| 3 | 14 |
38
|
1150
|
1695
|
740
|
||||||||
|
BMS/ 30U |
1 | 390*390 | 30 | 4 |
15
|
0.5
|
710
|
150
|
500
|
1210
|
760
|
650
|
350
|
| 2 | 9 |
31
|
1020
|
1565
|
400
|
||||||||
| 3 | 14 |
46
|
1330
|
1875
|
455
|
||||||||
|
XMSQ/
520-20U
|
4 | 520*520 | 20 | 9 |
40
|
0.5-1.5
|
1130
|
200
|
600
|
1730
|
830
|
850
|
560
|
| 6 | 14 |
60
|
1360
|
1960
|
630
|
||||||||
| 8 | 19 |
80
|
1580
|
2180
|
700
|
||||||||
| 12 | 29 |
120
|
2060
|
2660
|
830
|
||||||||
| 16 | 39 |
160
|
2460
|
3050
|
980
|
||||||||
| 18 | 44 |
176
|
2690
|
3260
|
1160
|
||||||||
| 20 | 49 |
200
|
2910
|
3500
|
1360
|
||||||||
|
BNSQ/
520-30U
|
4 | 520*520 | 30 | 9 |
60
|
0.5
|
1300
|
200
|
600
|
1900
|
830
|
850
|
590
|
| 6 | 14 |
90
|
1600
|
2200
|
660
|
||||||||
| 8 | 19 |
120
|
1900
|
2500
|
760
|
||||||||
| 12 | 19 |
180
|
2520
|
3120
|
930
|
||||||||
| 16 | 39 |
240
|
3060
|
3660
|
1100
|
||||||||
|
XMSQ/
700-25U
|
20 | 700*700 | 25 | 24 |
250
|
0.5-1.6
|
2200
|
460
|
800
|
3100
|
950
|
11000
|
2210
|
| 30 | 37 |
380
|
2880
|
3800
|
2660
|
||||||||
| 40 | 49 |
500
|
3500
|
4400
|
3080
|
||||||||
|
BNSQ/
700-30U
|
20 | 700*700 | 30 | 24 |
300
|
0.5
|
2450
|
460
|
800
|
3350
|
950
|
1100
|
2300
|
| 30 | 37 |
450
|
3230
|
4050
|
2800
|
||||||||
| 40 | 49 |
600
|
3950
|
4900
|
3500
|
||||||||
千斤顶压紧压滤机采用螺旋千斤顶作为压紧装置,具有
1.结构简单,设计合理
2.操作方便,无需电源
3.经济实惠,维修方便
4适用范围广的特点,是悬浮液分离的理想设备